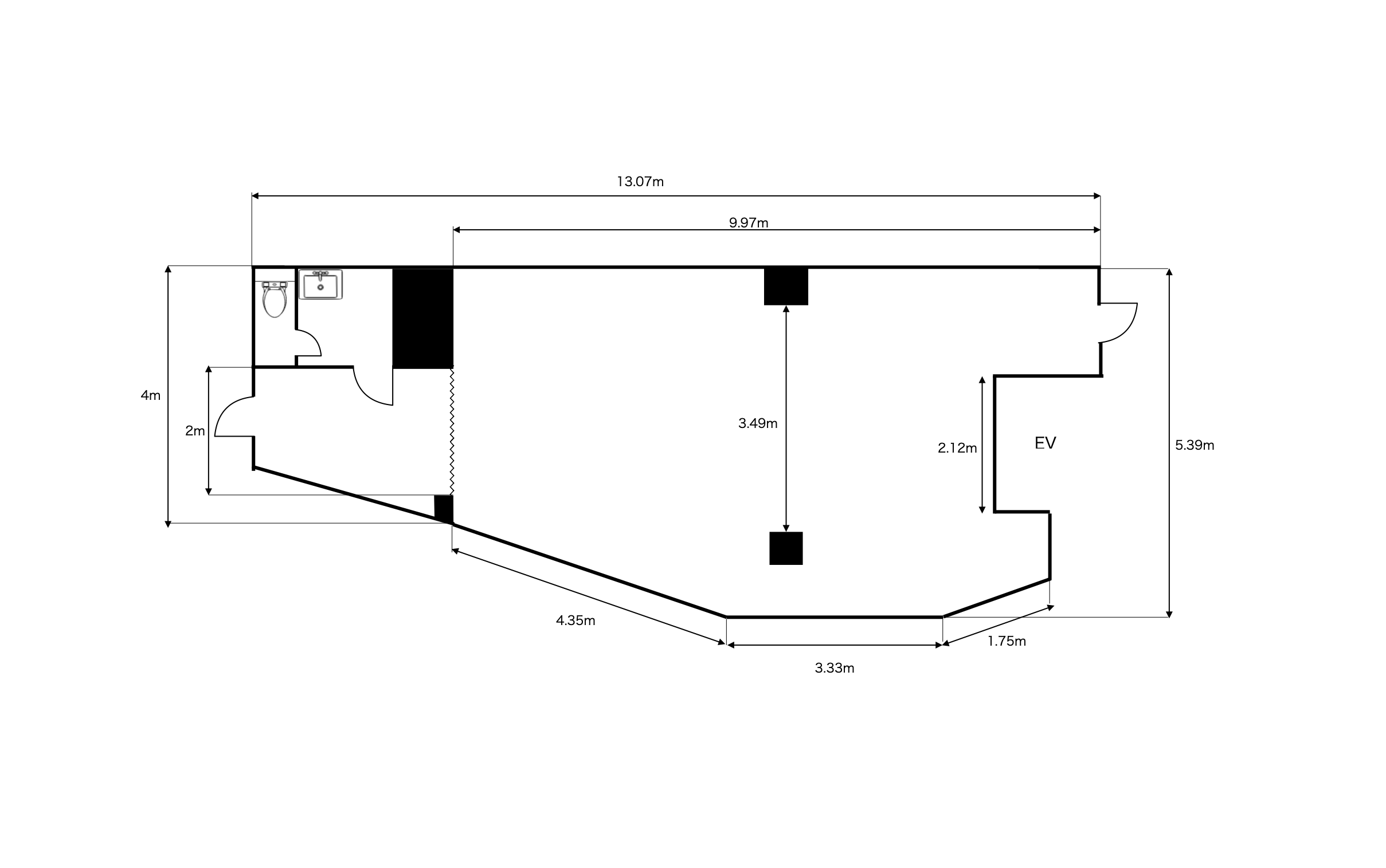
空間をイメージしやすいように間取りの寸法をご用意しました
PODBASEで撮影するにあたって
空間をイメージしやすいように間取りの寸法をご用意しました🚀

画像や動画だと窓側の形が伝わりにくく
ロケハンで「こんな形だったんだ!」とお客様に言われることが多かったため
こちらの寸法でイメージしていただければと思います🚀
※素人採寸なのであくまで参考としていただければ幸いです
リールをご覧いただくと詳細が確認できます!
※植物やレイアウトは変更することがありますのでご了承ください
この投稿をInstagramで見る
実際の様子が見てみたい!と思っていただいた方は
お気軽にロケハンにお越しください
ロケハンのご予約はお問い合わせフォームやインスタのDM
こちらの電話番号070-2360-6816(平日11:00-18:00)にて受付しております🪐
みなさまのご予約お待ちしております🧑🚀